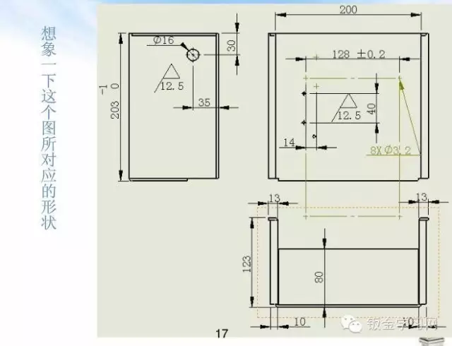
图文钣金识图培训
进入首页浏览更多精彩内容 >>
声明: 本网站为冲压和钣金业内信息集合和展示平台,欢迎不同的声音和观点,为行业人士提供参考,文章并不代表MFC的观点。书面刊用本站及MFC《金属板材成形》的原创文章,必须获得MFC的书面授权;电子平台转载,则必须注明作者和出处,对于盗版、冒名和不注明出处等行为以及由此产生的负面后果,MFC保留追究的权利。
【MFC原创】MFC金属成形智造报道——博俊科技: 汽车精密零部件和模具制造领军企业
TPS改善能造成经营财务优势
睿高|国内知名实验室设备制造商一次性采购四条睿高激光开卷落料
冬已尽,春来兮——2023成都工博会率先吹响西部工业盛会号角
【MFC推荐】宁德时代——储能全系统解决方案及产品手册
【MFC推荐】PPT | 铝板连接工艺概述
【MFC推荐】某日系合资品牌即将退市?
融合创新 数智未来——CIMT2023新闻发布会在京举行
微信公众号
冲压钣金门户
扫描或搜索关注